不動産情報
【春日野】山本新町4丁目
開放感と陽だまりに包まれる家。
中古戸建
-- 自然と遊びがそばにある暮らし。 --
・前面棟なしの開放感
・公園まで徒歩2分
・和室のある築6年の住まいで、家族の憩いとアウトドアを満喫。
◇くつろぎも楽しめるカバードポーチ付き
◆前面棟なし&公園目の前の開放感ある立地
◇春日野中央公園まで徒歩2分、小学校まで徒歩10分
◆和室・外部物置あり、築6年の中古戸建
- 販売価格
- 3,280万円
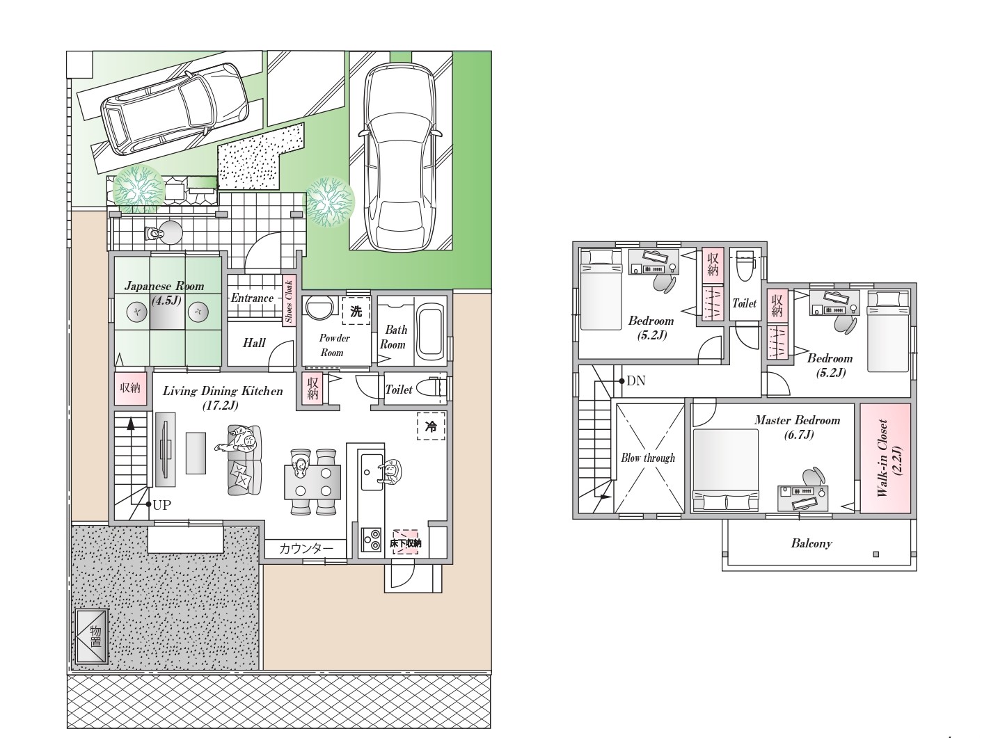
- 間取り
- 4LDK+WIC+カバードポーチ
- 土地面積
- 165.46㎡(50.05坪)
- 建物面積
- 96.05㎡(29.05坪)
- 築年月
- 2019年8月
- 所在地
- 広島市安佐南区山本新町4丁目
- 交通
- バス:広島交通「春日野中央」徒歩5分
この物件が気になった方は!
周辺情報
・春日野中央公園:徒歩2分
・春日野まごころ保育園:徒歩10分
・春日野小学校:徒歩10分
・ローソン山本7丁目店:車で4分
・フレスタ東山本店:車で8分
・イオンモール広島祇園:車で10分
物件概要
- 物件名
- 【春日野】山本新町4丁目
開放感と陽だまりに包まれる家。
- 所在地
- 広島市安佐南区山本新町4丁目
- 価格
- 3,280万円
- 間取り
- 4LDK+WIC+カバードポーチ
- 交通
- バス:広島交通「春日野中央」徒歩5分
- 販売戸数
- -
- 総戸数
- -
- 土地面積
- 165.46㎡(50.05坪)
- 建物面積
- 96.05㎡(29.05坪)
- 道路
- 北西6m
- 完成時期(築年月)
- 2019年8月
- 建物構造
- 木造2階建
- 駐車場
- 2台駐車可能
- 引渡時期
- 相談
- 取引態様
- 媒介
- 備考
- -
- 物件番号
- 2881
- 更新日
- 2025年09月07日
詳細情報やご質問にお答えします!

